连接点及生根点大样图
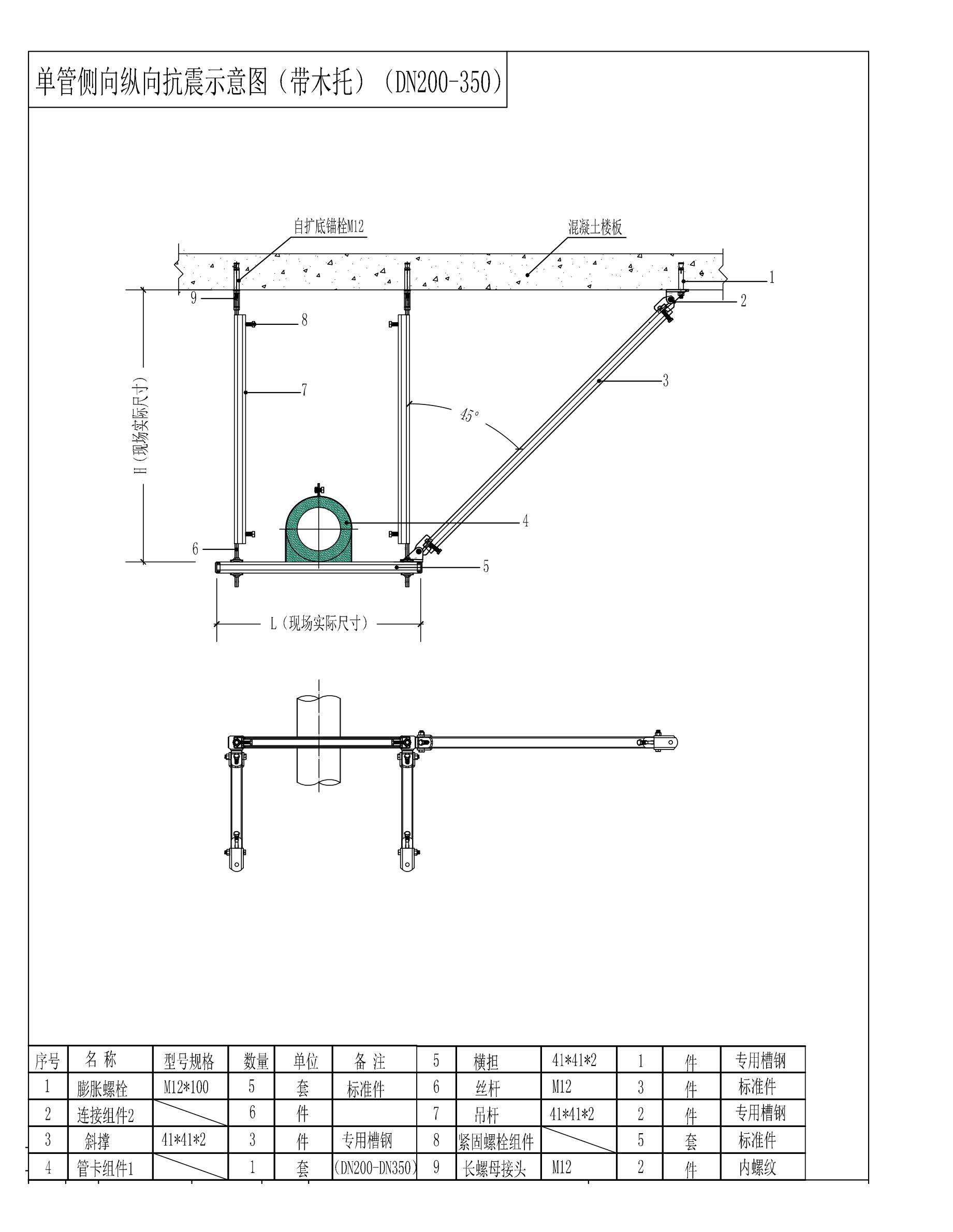
单管保温侧、纵向安装示意图
重型共架侧向安装示意图
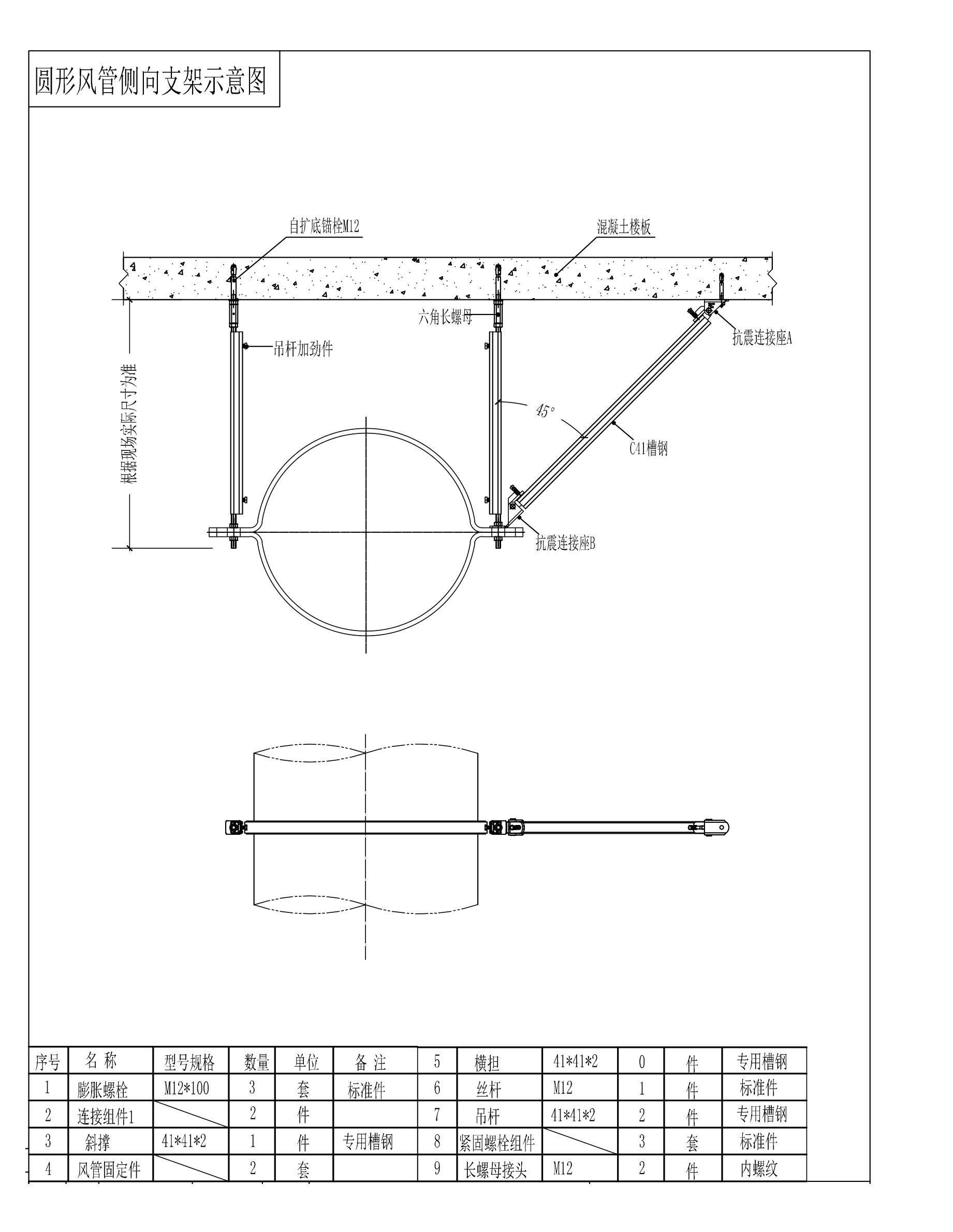
圆形风管侧向安装示意图
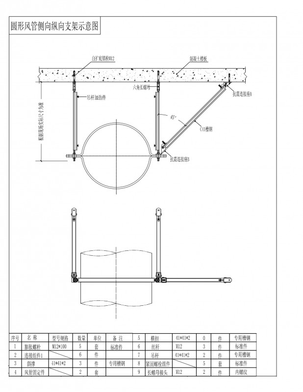
圆形风管侧·纵向安装示意图
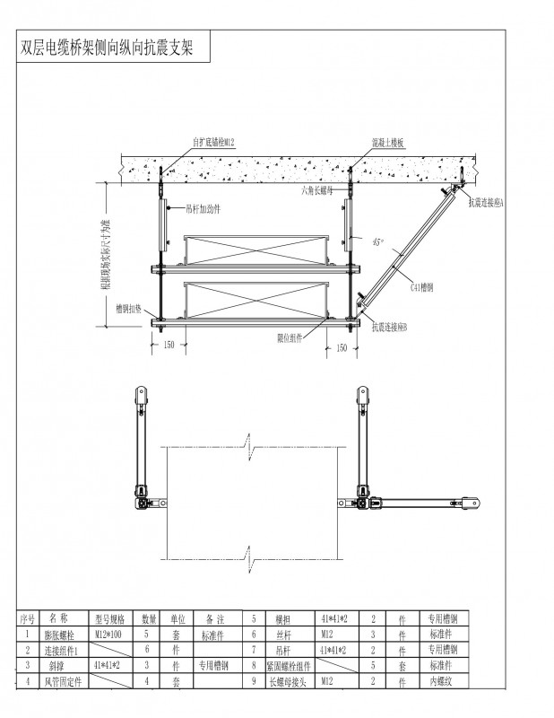
双层桥架侧.纵向安装示意图
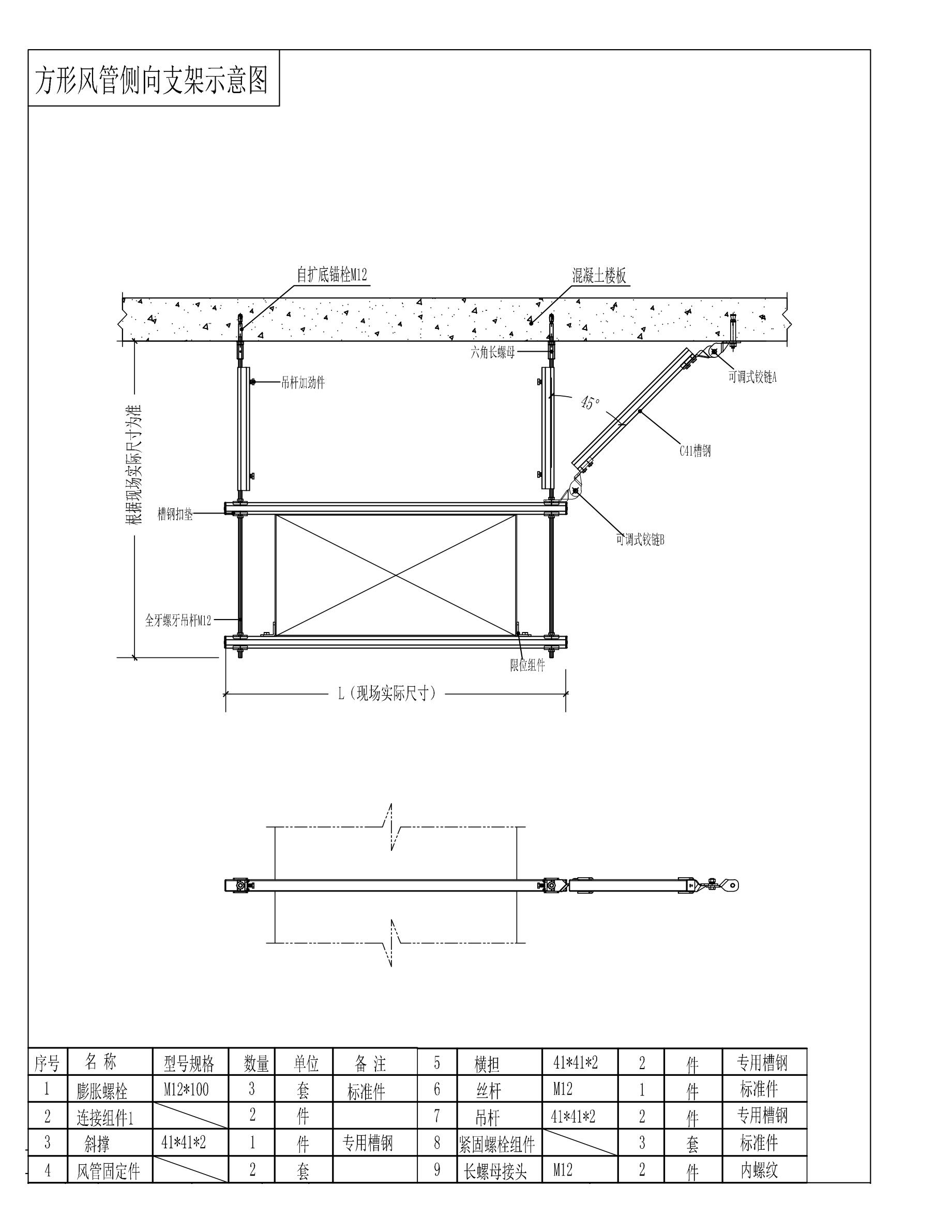
方形风管侧向安装示意图
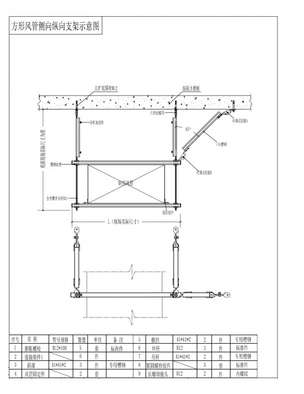
方形风管侧、纵向安装示意图
联系人:贾经理
手机:13366936563
邮箱:380903211@qq.com
地址: 北京海淀区马甸南村一号院